Aller à :

  • Aller à la recherche
  • Aller au menu principal
  • Aller au contenu
0
  • Ventes
  • Locations
  • Promotion
  • Estimation
  • Notre aventure
  • Alerte e-mail
  • Contact
0
Toujours là pour vous !
VotreRecherche
Dans un rayon de
Budget
entre et €
Min €
Max €
badge
  1. Accueil
  2. Vente
  3. Rhone
  4. Decines charpieu
  5. Maison
  6. T8
  7. Decines secteur calme maison 213 m 8 pieces terrain piscine
Exclusif
Coup de coeur
Réf : 193
Maison
DECINES SECTEUR CALME - MAISON 213 M² - 8 PIÈCES - TERRAIN - PISCINE
Nombre de pièces 8
Nombre de chambres 5
Nombre de salles de bain 1
Salle d'eau 2
TRAD_MELTEM_Superficieterrainenm² 440 m²
745 000 €

DECINES SECTEUR CALME - MAISON 213 M² - 8 PIÈCES - TERRAIN - PISCINE Décines-Charpieu (69150)

Immopass Conseils vous prpose en exlusivité cette maison d'exeption de 213 m² construite en 2023 avec matériaux et prestations de qualités.

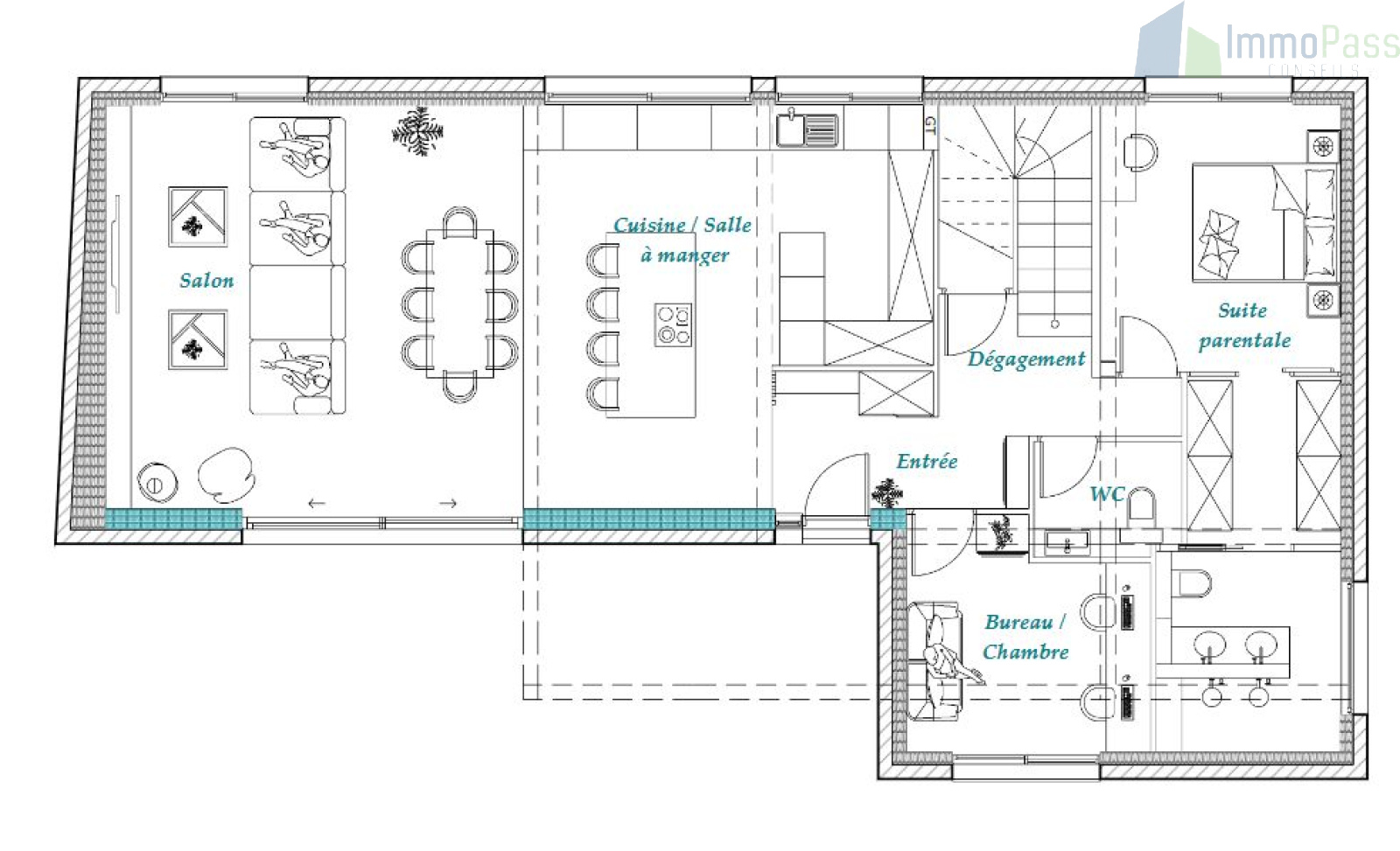
La maison exposé sud se compose d'une grande pièce de vie d'environ 70 m² incluant une entrée, une cuisine entièrement équipée, et un salon-séjour s'ouvrant par de larges baies vitrées sur la terrase et la piscine.

Une suite parentale avec dressing , salle d'eau et Wc, une chambre pouvant servir de bureau, et un WC séparé viennent compléter ce niveau.

L'étage se compose de trois chambres, d'une sale de bain spacieuse avec baignoire et douche à l'itaienne, et d'un Wc séparé.

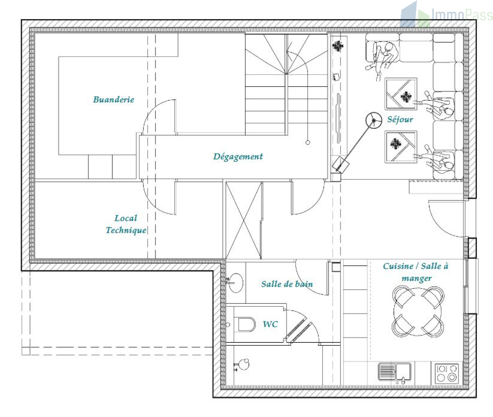
Le sous-sol se compose d'un studio très bien équipée et disposant de sa propore entrée, d'une salle d'eau avec Wc, d'une buanderie, et d'un local technique.

Cette maison située dans un secteur calme et résidentiel est proche de toutes les commodités : Ecoles, Commerces, transports en commun,Tramway Décines centre à 15 min à pied, Rocade Est, et Aéroport St Exupéry.

Vous souhaitez visiter et/ou obtenir des renseignements complémentaires contacter votre conseiller Immobilier ImmoPass Conseils Magid Benyoub par mail ou par téléphone : magid.benyoub@immopassconseils.fr 06.67.73.03.03

Cette annonce a été rédigée sous la responsabilité éditoriale de Magid BENYOUB, EI agissant sous le statut d'agent commercial immatriculé au RSAC de Lyon sous le numéro 441 868 155

  • Général
  • Détails +
  • Copropriété
  • Financier
  • DPE
  • Quartier
Caractérisque Valeurs
Code postal 69150
Surface habitable (m²) 213,47 m²
surface terrain 440 m²
Nombre de chambre(s) 5
Nombre de pièces 8
Nombre de niveaux 2
Vue degagé
Caractérisque Valeurs
Nb de salle de bains 1
Nb de salle d'eau 2
Cuisine Américaine
Type de cuisine Equipée
Mode de chauffage Climatisation
Type de chauffage Air pulsé
Format de chauffage Individuel
Interphone OUI
Visiophone OUI
Exposition Sud-Est
Année de construction 2023
Caractérisque Valeurs
Copropriété NON
Caractérisque Valeurs
Prix de vente honoraires TTC inclus 745 000 €
Taxe foncière annuelle 3 102 €
DPE GES
  • Commerces et santé
  • Loisirs
  • Ecoles
  • Transports
  • Pratique
Cette offre
vous intéresse

* champs obligatoires

Les informations recueillies sur ce formulaire sont enregistrées dans un fichier informatisé par La Boite Immo agissant comme Sous-traitant du traitement pour la gestion de la clientèle/prospects de l'Agence / du Réseau qui reste Responsable du Traitement de vos Données personnelles. La base légale du traitement repose sur l'intérêt légitime de l'Agence / du Réseau. Elles sont conservées jusqu'à demande de suppression et sont destinées à l'Agence / au Réseau. Conformément à la loi « informatique et libertés », vous disposez des droits d’accès, de rectification, d’effacement, d’opposition, de limitation et de portabilité de vos données. Vous pouvez retirer votre consentement à tout moment en contactant directement l’Agence / Le Réseau. Consultez le site https://cnil.fr/fr pour plus d’informations sur vos droits. Si vous estimez, après avoir contacté l'Agence / le Réseau, que vos droits « Informatique et Libertés » ne sont pas respectés, vous pouvez adresser une réclamation à la CNIL. Nous vous informons de l’existence de la liste d'opposition au démarchage téléphonique « Bloctel », sur laquelle vous pouvez vous inscrire ici : https://www.bloctel.gouv.fr Dans le cadre de la protection des Données personnelles, nous vous invitons à ne pas inscrire de Données sensibles dans le champ de saisie libre.
Ce site est protégé par reCAPTCHA, les Politiques de Confidentialité et les Conditions d'Utilisation de Google s'appliquent.

Partager le bien
Nos outils
Imprimer Imprimer
Calculatrice financière

* Champ obligatoire

Partager l'annonce

* champs obligatoires

Les informations recueillies sur ce formulaire sont enregistrées dans un fichier informatisé par La Boite Immo agissant comme Sous-traitant du traitement pour la gestion de la clientèle/prospects de l'Agence / du Réseau qui reste Responsable du Traitement de vos Données personnelles. La base légale du traitement repose sur l'intérêt légitime de l'Agence / du Réseau. Elles sont conservées jusqu'à demande de suppression et sont destinées à l'Agence / au Réseau. Conformément à la loi « informatique et libertés », vous disposez des droits d’accès, de rectification, d’effacement, d’opposition, de limitation et de portabilité de vos données. Vous pouvez retirer votre consentement à tout moment en contactant directement l’Agence / Le Réseau. Consultez le site https://cnil.fr/fr pour plus d’informations sur vos droits. Si vous estimez, après avoir contacté l'Agence / le Réseau, que vos droits « Informatique et Libertés » ne sont pas respectés, vous pouvez adresser une réclamation à la CNIL. Nous vous informons de l’existence de la liste d'opposition au démarchage téléphonique « Bloctel », sur laquelle vous pouvez vous inscrire ici : https://www.bloctel.gouv.fr Dans le cadre de la protection des Données personnelles, nous vous invitons à ne pas inscrire de Données sensibles dans le champ de saisie libre.
Ce site est protégé par reCAPTCHA, les Politiques de Confidentialité et les Conditions d'Utilisation de Google s'appliquent.

Détail des diagnostics énergétiques
DPE GES

Montant estimé des dépenses annuelles d'énergie pour un usage standard est compris entre 1 770 € et 2 450 € . Prix moyens des énergies indexés sur les années 2021, 2022 et 2023 (abonnements compris).

Partager avec vos proches

Facebook Facebook
Messenger Messenger
Twitter Twitter
WhatsApp WhatsApp
LinkedIn LinkedIn
Copier le lien Copier le lien
Contacter l'agence

Remplissez ce formulaire, nous ferons de notre mieux pour vous répondre dans les meilleurs délais.

Immo Pass Conseils
04 37 53 97 95
E-mail contact@immopassconseils.fr

184 avenue Paul Santy 69008 Lyon

184 avenue Paul Santy 69008 Lyon

TRAD_MELTEM_voscoordonnees
TRAD_MELTEM_voredemande
Règlementation

* Champ obligatoire

Les informations recueillies sur ce formulaire sont enregistrées dans un fichier informatisé par La Boite Immo agissant comme Sous-traitant du traitement pour la gestion de la clientèle/prospects de l'Agence / du Réseau qui reste Responsable du Traitement de vos Données personnelles. La base légale du traitement repose sur l'intérêt légitime de l'Agence / du Réseau. Elles sont conservées jusqu'à demande de suppression et sont destinées à l'Agence / au Réseau. Conformément à la loi « informatique et libertés », vous disposez des droits d’accès, de rectification, d’effacement, d’opposition, de limitation et de portabilité de vos données. Vous pouvez retirer votre consentement à tout moment en contactant directement l’Agence / Le Réseau. Consultez le site https://cnil.fr/fr pour plus d’informations sur vos droits. Si vous estimez, après avoir contacté l'Agence / le Réseau, que vos droits « Informatique et Libertés » ne sont pas respectés, vous pouvez adresser une réclamation à la CNIL. Nous vous informons de l’existence de la liste d'opposition au démarchage téléphonique « Bloctel », sur laquelle vous pouvez vous inscrire ici : https://www.bloctel.gouv.fr Dans le cadre de la protection des Données personnelles, nous vous invitons à ne pas inscrire de Données sensibles dans le champ de saisie libre.
Ce site est protégé par reCAPTCHA, les Politiques de Confidentialité et les Conditions d'Utilisation de Google s'appliquent.

Se connecter
Espace propriétaire
Page d'accueil
Adhérents

© 2026 | Tous droits réservés | Traduction powered by Google |

  • Nos honoraires
  • Plan du site
  • Mentions légales
  • Admin
  • Nos liens
  • Politique RGPD

Comme beaucoup, notre site utilise les cookies

On aimerait vous accompagner pendant votre visite. En poursuivant, vous acceptez l'utilisation des cookies par ce site, afin de vous proposer des contenus adaptés et réaliser des statistiques !

Paramétrer

Cookies fonctionnelsCes cookies sont indispensables à la navigation sur le site, pour vous garantir un fonctionnement optimal. Ils ne peuvent donc pas être désactivés.

Statistiques de visitesPour améliorer votre expérience, on a besoin de savoir ce qui vous intéresse !
Les données récoltées sont anonymisées.

?

Google Analytics

En savoir plus